联系我们

  • 朱总 18861234123
  • 江苏省常州市天宁区郑陆工业集中区
负压稀相输送
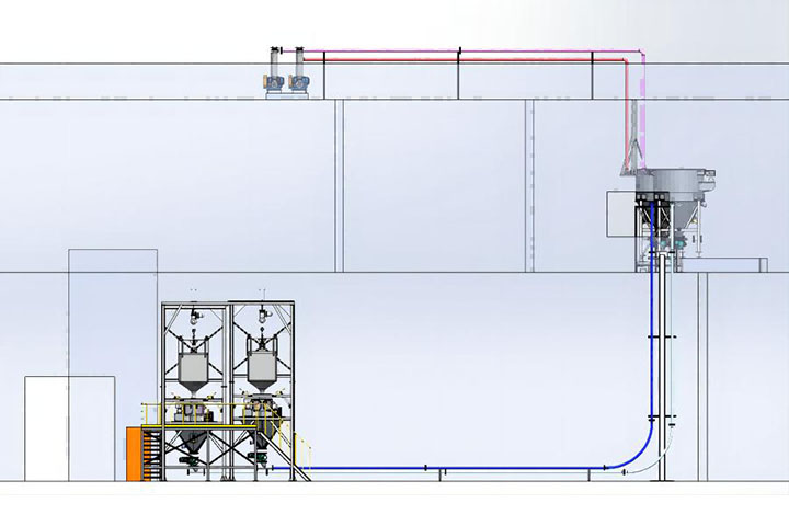
概述负压稀相输送系统采用负压罗茨泵动力源,管道输送压力呈低真空状态,管道风速约10—35m/秒,物料在管道里呈雾状。负压输送起点压力等于或接近大气压,终点压力在-10至~50Kpa之间,管道真空度沿输送管道逐渐增高。负压稀相输送系统也称···
所属分类:粉碎输送
产品咨询: 18861234123
  • 产品详情
  • 图片集锦

概述

负压稀相输送系统采用负压罗茨泵动力源,管道输送压力呈低真空状态,管道风速约10—35m/秒,物料在管道里呈雾状。负压输送起点压力等于或接近大气压,终点压力在-10至~50Kpa之间,管道真空度沿输送管道逐渐增高。负压稀相输送系统也称为真空稀相输送系统。

特点

1.输送真空压力低于环境压力,即使管道破损也不会造成物料泄露而对环境造成污染。

2.设备的制造、维护要求低,工人的可操作性强;可以长距离输送。

3.输送气体(一般为空气)直接取自大气,气体的温度即为环境温度;管道物料有一定的摩擦升温;

4.输送为连续式、亦可间断,管道内风速高,无物料积存;

5.可实现多点进料,多点卸料;

6.气体动力源一般为旋涡泵、罗茨真空泵,于物料无直接接触,使用寿命长;

7.对输送物料的适应性强,粉料、颗粒料均可顺利输送;特别适用于自粘性物料;

8.环境污染小,但对除尘面积要求高。

基本参数

空气速度:10m/s~35m/s
输送能力:zui大2~8t/h
输送距离:zui大20~100m
输送高度:zui大10~30m
气源类型:罗茨真空泵、漩涡泵等