- 产品详情
- 图片集锦
简述:
粉末或者母粒在旋转流化床内,受到环隙空气浮力,旋转离心力,自身重力作用
类别:
制粒包衣干燥机
详细说明:

概述:
粉末或者母粒在旋转流化床内,受到环隙空气浮力,旋转离心力,自身重力作用,呈环周绳股状,粘合剂或包衣液喷入料层形成真球度极高的丸粒或连续均匀的衣膜。
特点:
● 集混合,制丸,制粒,干燥为一体,减少工艺步骤及污染环节,降低劳动强度。
● 设备内外表面光洁,无死角,利于清洗,符合“GMP”要求。
工艺流程:

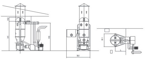
技术参数表:
项目/规格 | 1.5 | 10 | 20 | 30 | 60 | 120 | |
工作容积 | L | 5 | 30 | 60 | 105 | 180 | 420 |
投料量 | kg/批 | 0.5-1.5 | 3-10 | 8-20 | 10-30 | 20-60 | 40-120 |
旋转功率 | KW | 0.55 | 1.5 | 4 | 5.5 | 7.5 | 11 |
风机功率 | KW | 4 | 5.5 | 7.5 | 15 | 18.5 | 22 |
蒸汽耗量 | kg/h | 35 | 42 | 84 | 166 | 250 | 332 |
压缩空气 | m3/min | 0.3 | 0.6 | 0.6 | 1.1 | 1.8 | 2.4 |
主机尺寸 | H1(mm) | 2600 | 2250 | 2850 | 2850 | 3300 | 3500 |
H2(mm) | 320 | 490 | 590 | 690 | 790 | ||
H3(mm) | 2050 | 2600 | 2600 | 3080 | 3280 | ||
φ1(mm) | 400 | 700 | 1000 | 1200 | 1400 | 1600 | |
φ2(mm) | 180 | 180 | 280 | 280 | 280 | 315 | |
B1(mm) | 1650 | 1160 | 1460 | 1660 | 1860 | 2060 | |
B2(mm) | 1800 | 2460 | 2860 | 3260 | 3660 | ||
L(mm) | 1000 | 1250 | 1530 | 1650 | 1650 | 1750 | |
所有数据仅供参考,视物料情况,本公司有变更权利,并不另行通知。 | |||||||





